1、引言
房屋建筑采用建筑工业化方式建造能节约资源,减少劳动力,提高施工质量等,根据专业机构测算,可以降低能耗23%,降低水耗79%,减低模板消耗81%,施工场地20%。因此,推行装配式建筑是我国传统建筑行业转型升级的必然选择。
目前装配式剪力墙结构建造方式主要包括以下四种:
(1)装配整体式剪力墙,采用剪力墙墙身整体预制,边缘构件采用现浇形式;
(2)双面叠合剪力墙,采用剪力墙内侧面和外侧面预制,中间现浇;
(3)单面叠合剪力墙,采用建筑外围剪力墙外侧面预制,内侧现浇;
(4)内浇外挂,即主体结构受力构件采用现浇,非受力构件采用外挂形式。
前3种建造方式适用于一般高层建筑[1],而第4种内浇外挂体系由于内部主体结构受力构件采用现浇,周边围护的非主体结构构件采用工厂预制运至现场外挂安装就位后在节点区与主体结构构件整体现浇,这种方式没有突破结构设计规范限制,可适用于超高层建筑。
本文根据香港和内地不同设计习惯和方法,结合超高层建筑对地震荷载和风荷载极为敏感的特点,从超高层建筑设计、生产、施工等整个建造过程介绍了“内浇外挂”体系一些关键技术。
2、柔性连接节点技术
超高层建筑由于层数多,高度大,水平方向的地震反应和风致影响十分显著,除了竖向荷载,预制外挂墙板将承受相当大的水平地震荷载、风荷载,连接节点设计主要采取了如下技术措施:
在主体结构受力构件与非主体结构受力构件之间选择确定合理传力路径:对于一般外挂构件,其承受的竖向荷载主要通过预制构件顶部的外伸钢筋锚入主体结构受力构件来传递给主体结构,而水平荷载诸如地震荷载、风荷载则通过预制构件两端的钢筋与主体竖向构件现浇形成整体,即采用“先装法”先施工预制外墙板,后现浇梁、板等受力构件,两端的钢筋连接采取只传递剪力不传递弯矩的构造做法实现了“柔性连接”,弱化了对主体结构的影响。
对于一些预制外墙构件由于空间形状比较复杂,采用有限元分析软件进行局部补充计算:图1是7度抗震烈度、沿海地区某超高层项目中的预制凸窗采用abaqus软件分析的模型,计算结果表明,凸窗顶部的两端受力较大,该处外伸钢筋配筋也相应加强。
▲图1 预制凸窗受力分析模型
3、防水设计技术
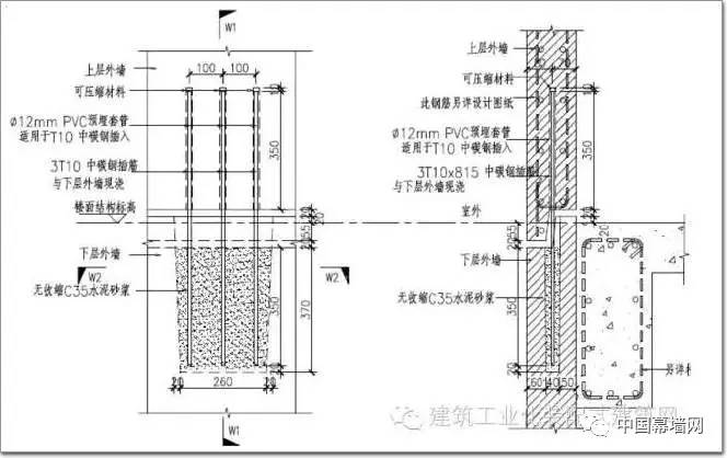
外挂墙板水平拼缝处采用靴脚合结构企口构造,如图2。另外在竖直拼缝接触面处进行洗水或扫花处理,增加构件连接的紧密性,同时设置止水槽,构成防水第二道防线,如图3。这样形成了廖多道防水路线,彻底解决了外墙渗水问题。
▲图2 外挂墙板水平拼缝节点及防水构造
▲图3 外挂墙板竖直拼缝节点及防水构造
门窗处,为解决后装门窗处容易渗水问题,在工厂生产时,将门窗与外墙整体预制,门窗连接件预埋入构件中,通过混凝土构造达到止水目的;在阳台位置,阳台设计标高低于比室内楼层标高,预制外墙门底部结构尺寸不应小于125mm,使预制外墙结构刚度满足要求,保证预制外墙不发生变形,同时满足阳台防水要求;建筑顶层,现浇结构包住预制外墙顶部,实现预制构件与现浇构件完美结合,同时保证防水要求与外立面效果。
4、抗风技术
当预制外挂墙板左右侧有非结构墙即构造柱存在,或预制外墙板跨度过大时,为避免风荷载作用于外墙板上将其掀离梁位,在超高层中尤其容易发生,采用风码装置固定外墙板,同时不将外墙板的荷载传递给下层受力构件。预制外墙板外伸钢筋上端锚入梁或楼板,右侧锚入剪力墙,左侧锚入结构柱非结构墙. 中。左侧和下侧可认为自由端,右侧和上侧可认为是简支端柔性连接,此时左侧将需增加风码装置,如图4。
▲图4 风码位置及构造
风码将预制外墙板与下层梁固定。另一方面,由于风码上端钢筋外围套PVC管,防止预制外墙板作用力传至下层梁。当在超高层中应用预制外墙板时,在非结构墙一端需增加风码,另外,由于风效应过大,在较大跨度的预制外墙板跨中位置也需增加风码装置。通过计算,当150mm厚度的预制外墙板,层高约为3.5m,楼层相对于地面高度约为100m时,预制外墙板跨长超过5m,预制外墙板的刚度将不足以抵抗风载作用,变形超过规范允许要求,需增加风码装置。
风码装置的位置和数量有预制外墙跨度和锚固方式相关,作用类似栓钉,主要承担风荷载产生的剪力作用,风码钢筋型号由计算确定。为方便施工,风码施工现场可采取后注浆形式,也可采用后支模浇筑混凝土形式。为更好的提高装配式建筑施工效率,风码装置从施工便利性方面也在不断优化。
5、质量控制技术
在施工过程中,推行PASS(Performance Assessment Scoring System 的简称)制度进行质量控制。PASS制度以过去连续12个月内不同阶段的平均分,乘以固定系数,所得出来的总分作为施工质量的评分。为保障PASS评分公平公正,成立独立的PASS审核小组,负责每个季度两个月的结构和现场装饰工作评审以及一个月的安全评审工作。PASS制度对质量控制意义重大。
在预制构件批量生产前,先进行BIM模型项目建造过程,并在工厂内预演安装过程,根据模拟结果和预安装过程,相关人员可直观的看到实际项目的效果,避免构件尺寸错误,构件之间的连接碰撞等现象的发生,另一方面,产业工人也得到了很好的安装培训。
6、安装精度控制技术
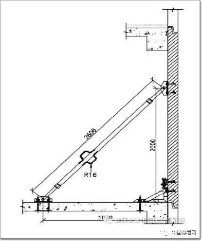
预制外挂墙板安装前,应按设计要求在构件墙面和相应对的支承结构面上标记中心线、标高线等控制尺寸线,按标准图或设计文件校核预埋件及连接钢筋等。安装时,先将斜撑杆一端固定于地面或楼面板上,七字码底部固定于地面或楼面板上;再将构件吊运至指定位置后,分别固定到七字码上;最后根据水准点和轴线位置,调节支撑杆的旋转装置来校对构件的直度,调节七字码的螺母微调构件的水平位移和竖向位移,如图5。
▲图5 预制外墙板安装大样
当上下层预制外墙厚度不一致,上下内侧无参考线时,安装仅仅利用七字码难以实现上下层对齐。在下层外墙增加带斜角的槽钢辅助装置,吊运上层外墙插入槽钢辅助装置内侧,方便对齐安装,如图6。
▲图6 斜角槽钢辅助装置
7、钢筋防碰撞技术
施工现场,构件之间以及构件与现浇结构之间可能发生钢筋碰撞,钢筋碰撞会影响构件的安装。钢筋碰撞在设计时即需考虑,现浇结构的钢筋在预制构件就位后错开构件外伸钢筋放置。通过在工厂内预演安装样板测试,调整设计时的钢筋碰撞问题。
当两件预制外墙板在剪力墙侧向相连时,构件外伸钢筋在剪力墙内交汇,节点处钢筋密集容易碰撞。设计时将相邻的一件构件外伸钢筋向外弯曲,另一件构件外伸钢筋向内弯曲,剪力墙竖向钢筋和横向钢筋错开构件的外伸钢筋,避免施工时钢筋碰撞,如图7。
▲图7 相邻外墙板连接大样
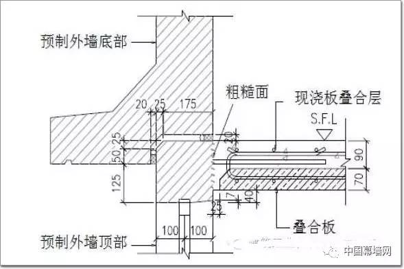
当叠合楼板与全预制楼板之间的连接时,两件构件的外伸钢筋容易发生碰撞,钢筋碰撞会导致两件构件连接不上,影响后浇混凝土施工。设计时,需将两件预制构件外伸钢筋在构件内部向上弯曲,再通过一段钢筋分别进行搭接,从而实现叠合楼板与全预制楼板的紧密连接,避免构件间的碰撞,如图8。
▲图8 相邻楼板连接大样
8、施工组织管理技术
由于非结构预制构件已经提前在工厂预制,对于流水施工组织缩短了流水节拍,非常有利于施工现场的流水施工组织管理,其主要施工工序包括:1.吊运安装预制构件;2.绑扎现浇部分钢筋;3.组合大钢模/铝模进行支模;4.现浇混凝土。由于第1个工序施工速度快占用时间短且并不会拖延其他工序,所以可以穿插机动进行。所以关键工序还是取决于现浇部分的合理科学的施工组织管理,如合理组织劳动班组、划分流水施工段,同时也可以结合楼层平面分区考虑空间跳层划分流水段,完全可以实现“四天一层”的建造速度。例如,第一天吊运安装预制构件的同时穿插绑扎剪力墙钢筋,第二天安装剪力墙模板和安装叠合板及绑扎楼板钢筋,第三天已经完成模板安装的施工段则可浇筑混凝土。
9、项目应用
内浇外挂技术具有广泛的适用性和极高的推广价值,下面结合香港和内地两个典型工程案例,介绍本成果技术应用情况。
启德1A项目位于香港地区,该项目由6栋35-41层住宅、一座配套商场及一个地下停车场组成(图9)。其中,住宅采用内浇外挂剪力墙结构,剪力墙现浇,非受力构件工厂预制,预制率约为40%。预制构件主要预制外墙板,叠合楼板,预制楼梯,整体预制卫生间等。预制构件方量达17000m3,采用标准设计,有效降低了工程造价,提高了施工效率。
▲图9 启德1A项目标准层平面图
中海天钻项目位于深圳市罗湖区,建筑主体共有11栋塔楼,其中,2栋为超高层装配式剪力墙结构,高度分别为148米(层数46层)和126米(层数46层);抗震设防类别为丙类,建筑结构安全等级为二级,设计基准期为50年,设计使用年限为50年。根据《深圳市住宅产业化项目单体建筑预制率和装配率计算细则(试行)》的要求,装配式建筑装配率不低于30%和预制率不低于15%,基于成本最优,选择部分凸窗采用预制,楼板叠合预制,楼梯预制(图10);该项目位于7度抗震区和沿海地区,并且高度达到规范规定的B级高度,地震荷载以及风荷载较大,除结构主体计算较复杂外,预制构件也需要进行抗震、抗风分析 [4] 。
▲图10 中海天钻项目标准层平面图
10、结语
“内浇外挂”体系不影响受力结构的整体性,并方便外墙施工,相比装配式剪力墙结构其他体系,经济性更好,在目前装配式建筑发展初级阶段,建造成本普遍偏高的情况下,具有较高的推广应用价值。本文介绍了超高层建筑“内浇外挂”体系的建造过程的一些关键技术,该技术也适用于一般“内浇外挂”体系,总结如下:
(1)“内浇外挂”体系接缝处的受力和防水是影响装配式建筑品质的重要因素,通过某地震区域超高层建筑有限元分析,论证了在地震荷载下,预制外挂墙板端部受力较大的特点;根据不同部位处的外挂墙板的水平、竖直接缝设计节点和防水构造,使外墙接缝处满足受力和防水要求。
(2)当风荷载较大时,风码技术可有效防止预制外挂墙板掀离梁位,使“内浇外挂”技术应用于超高层建筑。
(3)部品的质量至关重要, PASS制度可控制施工全过程的质量,并通过BIM模型模拟和工厂预安装,避免构件尺寸错误,安装碰撞等问题的发生,提高了产业工厂安装技能。
(4)安装精度影响装配式建筑的施工质量,临时安装系统可有效控制外挂墙板的安装精度。
(5)通过外挂墙板和叠合板钢筋错位防碰撞措施,可避免安装碰撞问题影响施工效率。
(6)通过有效的施工组织管理,可实现内浇外挂体系四天一循环的施工周期。
(7)通过香港和深圳两个典型的超高层装配式项目,为应用“内浇外挂”技术提供了较好的参考实例。
参考文献:
[1] 装配式混凝土结构技术规程[M]. 中国建筑工业出版社. 2014
[2] 麦耀荣,香港公共房屋预制装配式建筑方法的演进[J].混凝土世界.2015
[3] 预制混凝土建造作业守则[M]. 屋宇署. 2004
[4] Yee, Alfred A., "Design Consideration for Precast Prestressed Concrete Building Structure in Seismic Areas" PCI JOURNAL, V36, No.3, May-June 1991, pp.40-55.
作者:姜绍杰 刘新伟等
延伸阅读:
装配式建筑装配式建筑是指用预制的构件在工地装配而成的建筑。这种建筑的优点是建造速度快,受气候条件制约小,节约劳动力并可提高建筑质量。每个人都将可以自己diY设计搭建自己的房子,墙体是可反复拆卸的,可以重复利用不会由于拆墙而产生建筑垃圾!
随着现代工业技术的发展,建造房屋可以像机器生产那样,成批成套地制造。只要把预制好的房屋构件,运到工地装配起来就成了。
装配式建筑在20世纪初就开始引起人们的兴趣,到六十年代终于实现。英、法、苏联等国首先作了尝试。由于装配式建筑的建造速度快,而且生产成本较低,迅速在世界各地推广开来。
早期的装配式建筑外形比较呆板,千篇一律。后来人们在设计上做了改进,增加了灵活性和多样性,使装配式建筑不仅能够成批建造,而且样式丰富。美国有一种活动住宅,是比较先进的装配式建筑,每个住宅单元就像是一辆大型的拖车,只要用特殊的汽车把它拉到现场,再由起重机吊装到地板垫块上和预埋好的水道、电源、电话系统相接,就能使用。活动住宅内部有暖气、浴室、厨房、餐厅、卧室等设施。活动住宅既能独成一个单元,也能互相连接起来。
█ 特点
1. 大量的建筑部品由车间生产加工完成,构件种类主要有:外墙板、内墙板、叠合板、阳台、空调板、楼梯、预制梁、预制柱等。
2. 现场大量的装配作业,比原始现浇作业大大减少。
3. 采用建筑、装修一体化设计、施工,理想状态是装修可随主体施工同步进行。
4. 设计的标准化和管理的信息化,构件越标准,生产效率越高,相应的构件成本就会下降,配合工厂的数字化管理,整个装配式建筑的性价比会越来越高。
5. 符合绿色建筑的要求。
█ 发展
17世纪向美洲移民时期所用的木构架拼装房屋,就是一种装配式建筑。1851年伦敦建成的用铁骨架嵌玻璃的水晶宫是世界上第一座大型装配式建筑。第二次世界大战后,欧洲国家以及日本等国房荒严重,迫切要求解决住宅问题,促进了装配式建筑的发展。到60年代,装配式建筑得到大量推广。装配式建筑按结构形式和施工方法一般分为五种。
█ 政策
国务院总理李克强16年9月14日主持召开国务院常务会议,部署加快推进“互联网+政务服务”,以深化政府自身改革更大程度利企便民;决定大力发展装配式建筑,推动产业结构调整升级。
按照推进供给侧结构性改革和新型城镇化发展的要求,大力发展钢结构、混凝土等装配式建筑,具有发展节能环保新产业、提高建筑安全水平、推动化解过剩产能等一举多得之效。会议决定,以京津冀、长三角、珠三角城市群和常住人口超过300万的其他城市为重点,加快提高装配式建筑占新建建筑面积的比例。为此,一要适应市场需求,完善装配式建筑标准规范,推进集成化设计、工业化生产、装配化施工、一体化装修,支持部品部件生产企业完善品种和规格,引导企业研发适用技术、设备和机具,提高装配式建材应用比例,促进建造方式现代化。二要健全与装配式建筑相适应的发包承包、施工许可、工程造价、竣工验收等制度,实现工程设计、部品部件生产、施工及采购统一管理和深度融合。强化全过程监管,确保工程质量安全。三要加大人才培养力度,将发展装配式建筑列入城市规划建设考核指标,鼓励各地结合实际出台规划审批、基础设施配套、财政税收等支持政策,在供地方案中明确发展装配式建筑的比例要求。用适用、经济、安全、绿色、美观的装配式建筑服务发展方式转变、提升群众生活品质。
█ 种类
砌块建筑
用预制的块状材料砌成墙体的装配式建筑,适于建造3~5层建筑,如提高砌块强度或配置钢筋,还可适当增加层数。砌块建筑适应性强,生产工艺简单,施工简便,造价较低,还可利用地方材料和工业废料。建筑砌块有小型、中型、大型之分:小型砌块适于人工搬运和砌筑,工业化程度较低,灵活方便,使用较广;中型砌块可用小型机械吊装,可节省砌筑劳动力;大型砌块现已被预制大型板材所代替。
砌块有实心和空心两类,实心的较多采用轻质材料制成。砌块的接缝是保证砌体强度的重要环节,一般采用水泥砂浆砌筑,小型砌块还可用套接而不用砂浆的干砌法,可减少施工中的湿作业。有的砌块表面经过处理,可作清水墙。
板材建筑
由预制的大型内外墙板、楼板和屋面板等板材装配而成,又称大板建筑。它是工业化体系建筑中全装配式建筑的主要类型。板材建筑可以减轻结构重量,提高劳动生产率,扩大建筑的使用面积和防震能力。板材建筑的内墙板多为钢筋混凝土的实心板或空心板;外墙板多为带有保温层的钢筋混凝土复合板,也可用轻骨料混凝土、泡沫混凝土或大孔混凝土等制成带有外饰面的墙板。建筑内的设备常采用集中的室内管道配件或盒式卫生间等,以提高装配化的程度。大板建筑的关键问题是节点设计。在结构上应保证构件连接的整体性(板材之间的连接方法主要有焊接、螺栓连接和后浇混凝土整体连接)。在防水构造上要妥善解决外墙板接缝的防水,以及楼缝、角部的热工处理等问题。大板建筑的主要缺点是对建筑物造型和布局有较大的制约性;小开间横向承重的大板建筑内部分隔缺少灵活性(纵墙式、内柱式和大跨度楼板式的内部可灵活分隔)。
盒式建筑
从板材建筑的基础上发展起来的一种装配式建筑。这种建筑工厂化的程度很高,现场安装快。一般不但在工厂完成盒子的结构部分,而且内部装修和设备也都安装好,甚至可连家具、地毯等一概安装齐全。盒子吊装完成、接好管线后即可使用。盒式建筑的装配形式有:
① 全盒式,完全由承重盒子重叠组成建筑。
② 板材盒式,将小开间的厨房、卫生间或楼梯间等做成承重盒子,再与墙板和楼板等组成建筑。
③ 核心体盒式,以承重的卫生间盒子作为核心体,四周再用楼板、墙板或骨架组成建筑。
④ 骨架盒式,用轻质材料制成的许多住宅单元或单间式盒子,支承在承重骨架上形成建筑。也有用轻质材料制成包括设备和管道的卫生间盒子,安置在用其他结构形式的建筑内。盒子建筑工业化程度较高,但投资大,运输不便,且需用重型吊装设备,因此,发展受到限制。
骨架板材建筑
由预制的骨架和板材组成。其承重结构一般有两种形式:一种是由柱、梁组成承重框架,再搁置楼板和非承重的内外墙板的框架结构体系;另一种是柱子和楼板组成承重的板柱结构体系,内外墙板是非承重的。承重骨架一般多为重型的钢筋混凝土结构,也有采用钢和木作成骨架和板材组合,常用于轻型装配式建筑中。骨架板材建筑结构合理,可以减轻建筑物的自重,内部分隔灵活,适用于多层和高层的建筑。
钢筋混凝土框架结构体系的骨架板材建筑有全装配式、预制和现浇相结合的装配整体式两种。保证这类建筑的结构具有足够的刚度和整体性的关键是构件连接。柱与基础、柱与梁、梁与梁、梁与板等的节点连接,应根据结构的需要和施工条件,通过计算进行设计和选择。节点连接的方法,常见的有榫接法、焊接法、牛腿搁置法和留筋现浇成整体的叠合法等。
板柱结构体系的骨架板材建筑是方形或接近方形的预制楼板同预制柱子组合的结构系统。楼板多数为四角支在柱子上;也有在楼板接缝处留槽,从柱子预留孔中穿钢筋,张拉后灌混凝土。
升板和升层建筑
板柱结构体系的一种,但施工方法则有所不同。这种建筑是在底层混凝土地面上重复浇筑各层楼板和屋面板,竖立预制钢筋混凝土柱子,以柱为导杆,用放在柱子上的油压千斤顶把楼板和屋面板提升到设计高度,加以固定。外墙可用砖墙、砌块墙、预制外墙板、轻质组合墙板或幕墙等;也可以在提升楼板时提升滑动模板、浇筑外墙。升板建筑施工时大量操作在地面进行,减少高空作业和垂直运输,节约模板和脚手架,并可减少施工现场面积。升板建筑多采用无梁楼板或双向密肋楼板,楼板同柱子连接节点常采用后浇柱帽或采用承重销、剪力块等无柱帽节点。升板建筑一般柱距较大,楼板承载力也较强,多用作商场、仓库、工场和多层车库等。
升层建筑是在升板建筑每层的楼板还在地面时先安装好内外预制墙体,一起提升的建筑。升层建筑可以加快施工速度,比较适用于场地受限制的地方。

共有条评论 网友评论